Base Plate Drawing Patents Plate
If you are searching about Steel Design - Base Plates - Fixed base plate design calculations you've visit to the right page. We have 18 Pictures about Steel Design - Base Plates - Fixed base plate design calculations like Base Plate Drawing Example â€" Blog Nobel, Base Plate Design and also Stadium DWG Section for AutoCAD • Designs CAD. Here it is:
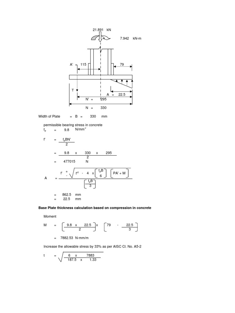
Steel Design - Base Plates - Fixed Base Plate Design Calculations

base plate fixed
Base Plate Design
Structural Steel Connections | | CAD Block And Typical Drawing For
dwg linecad
Lace Rendering - Mood Drawing - University Of Fashion
female lace drawing mood croquis rendering supplies tools template
Base Plate | Build Your Own Hexagonal Beam
Base Plate â€" Phillip Hengst Mechanical Engineer
perpendicular extruded
Pipe Support Drawing Package
support pipe sleeper drawing piping package retaining pd ps
Stadium DWG Section For AutoCAD • Designs CAD

stadium dwg autocad section cad bibliocad
Roof Truss Structure DWG Block For AutoCAD â€" Designs CAD
truss roof structure dwg autocad block cad advertisement bibliocad
Minisplit Placement Details DWG Detail For AutoCAD • Designs CAD

minisplit dwg autocad placement cad bibliocad
Portal Frame DWG Section For AutoCAD • Designs CAD

portal frame dwg autocad section bibliocad cad
BASE PLATE | 3D CAD Model Library | GrabCAD

Patent US20070122587 - Composite Material And Base Plate - Google Patents

patents plate
Phalanx Dislocations - Hand - Orthobullets

orthobullets dip anatomy phalanx hand
Base Plate Drawing Example â€" Blog Nobel
Project02 - Iliamirahsulaimancaddesign

plate base project02
Solved: Base Plate With Tube That Veers Off Base Plate. - Autodesk

autodesk plate base
Solved: Base Plate With Tube That Veers Off Base Plate. - Autodesk
plate base autodesk veers tube
Support pipe sleeper drawing piping package retaining pd ps. Plate base autodesk veers tube. Structural steel connections
0 Response to "Base Plate Drawing Patents Plate"
Post a Comment